Skoči do osrednje vsebine
GOV.SI

Delna in popolna zapora regionalne ceste v Fali

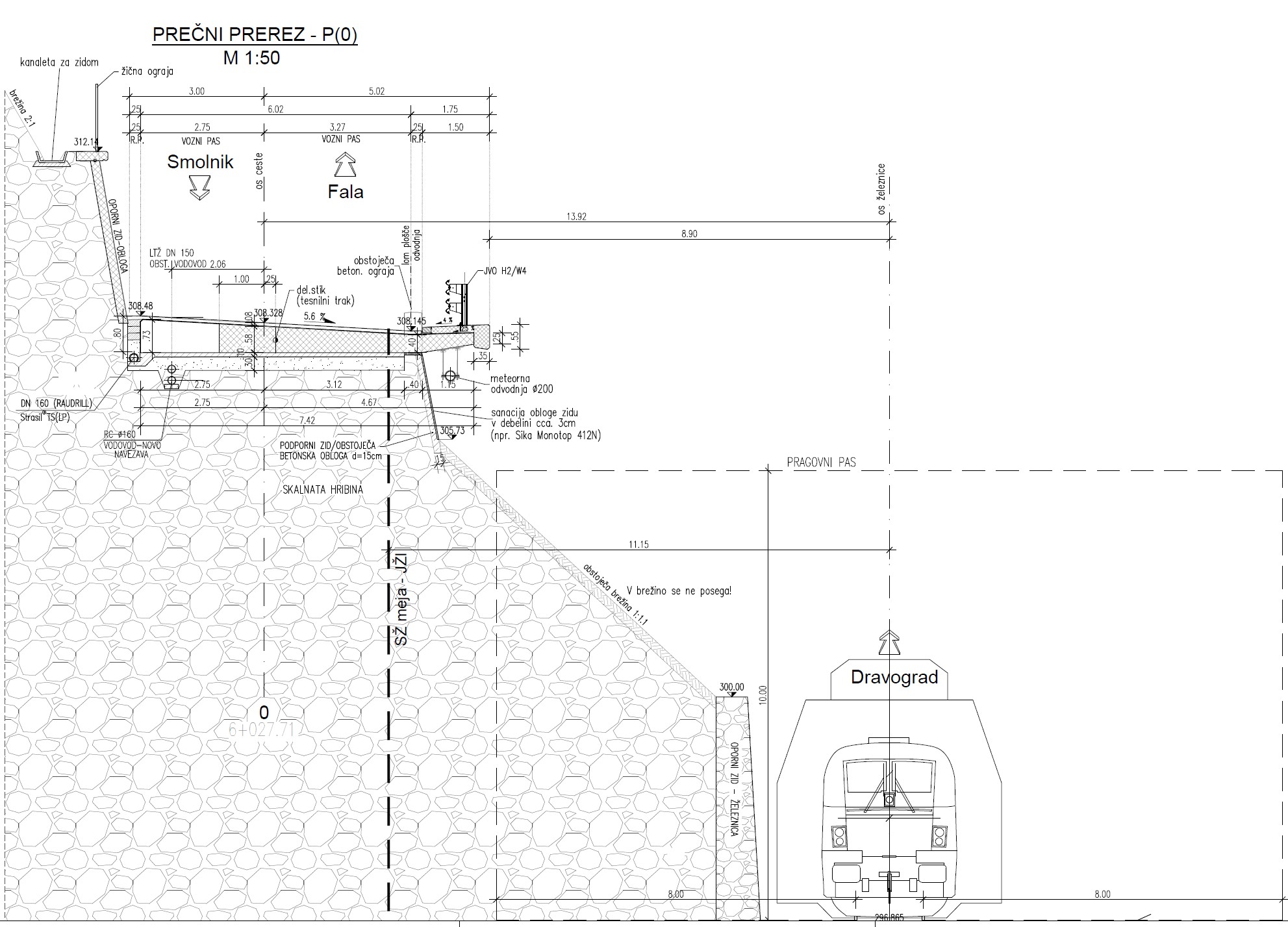
Direkcija za infrastrukturo je pristopila k izvedbi rekonstrukcije opornih in podpornih konstrukcij ter mostu čez hudournik pri Fali na regionalni cesti R3-705, odsek 1432 Ruše–Puščava med km 6,003 in km 6,156. V času gradbenih del bo promet potekal enosmerno izmenično.

Popolna zapora za vozila nad 3,5 tone, (kamione, avtobuse, prikoličarje in vlačilce) z izjemo šolskega minibusa mase 5,5 tone je predvidena od ponedeljka, 27. novembra 2023 naprej. Obvoz med Falo in Smolnikom pri Rušah bo potekal po regionalni cesti R3-701, odsek 1279 Ruta–Pesek in glavni cesti G1-1, odsek 0245 Ruta–Maribor (Koroški most) ter regionalni cesti R2-435, odsek 1439 Ruše–Selnica.

Za osebna vozila do 3,5 tone in za šolski minibus, bo promet potekal enosmerno izmenično čez gradbišče.

Predvidoma v prvi polovici meseca januarja bo potekala montaža začasnega mostu, ki bo omogočal prevoznost ceste med gradnjo. V tem času je predvidena 7-dnevna popolna zapora regionalne ceste med Činžatom in Smolnikom.

Vsem uporabnikom se zahvaljujemo za razumevanje in strpnost.

Zemljevid s prikazom lokacije zapore

Lokacija zapore

1 / 3